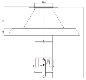
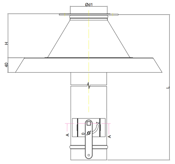
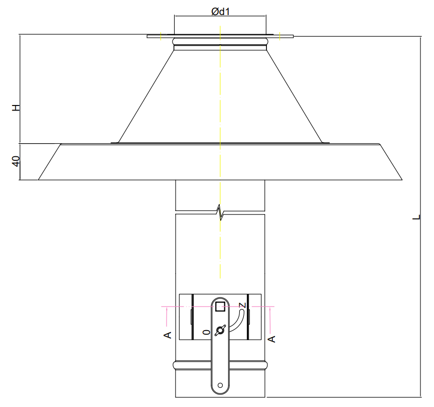
Podstawa dachowa okrągła B3 Z MECHANIZMEM RĘCZNYM Ø250mm
- Podstawa dachowa okrągła B3 Z MECHANIZMEM RĘCZNYM. Wykonana z blachy ocynkowanej odpornej na korozję i warunki atmosferyczne. Stanowi elementy nośne wentylatorów dachowych, czerpni powietrza lub wyrzutni dachowych.
W zestawie do podstawy dachowej dołączana jest przepustnica kołowa z nastawem ręcznym.
Parametry techniczne
Producent
Kod producenta
GPDO3R 250
Seria
Materiał
Blacha ocynk
Średnica [mm]
160
Wysokość rury [mm]
1000
Dane producenta
P. P. U. H. GreKa Sp. z o.o.
Gwarancja producenta na 2 lata
Producent gwarantuje naprawę lub wymianę sprzętu do 24 miesięcy od daty zakupu. Skontaktuj się ze sklepem za pośrednictwem formularza reklamacji aby zamówić kuriera który odbierze sprzęt z Twojego domu.
Zapytaj o produkt
Napisz swoją opinię




